Office Under Offer in 12 West Hampstead Mews, London, NW6 3BB

Asking price £595000
Office Under Offer
Office
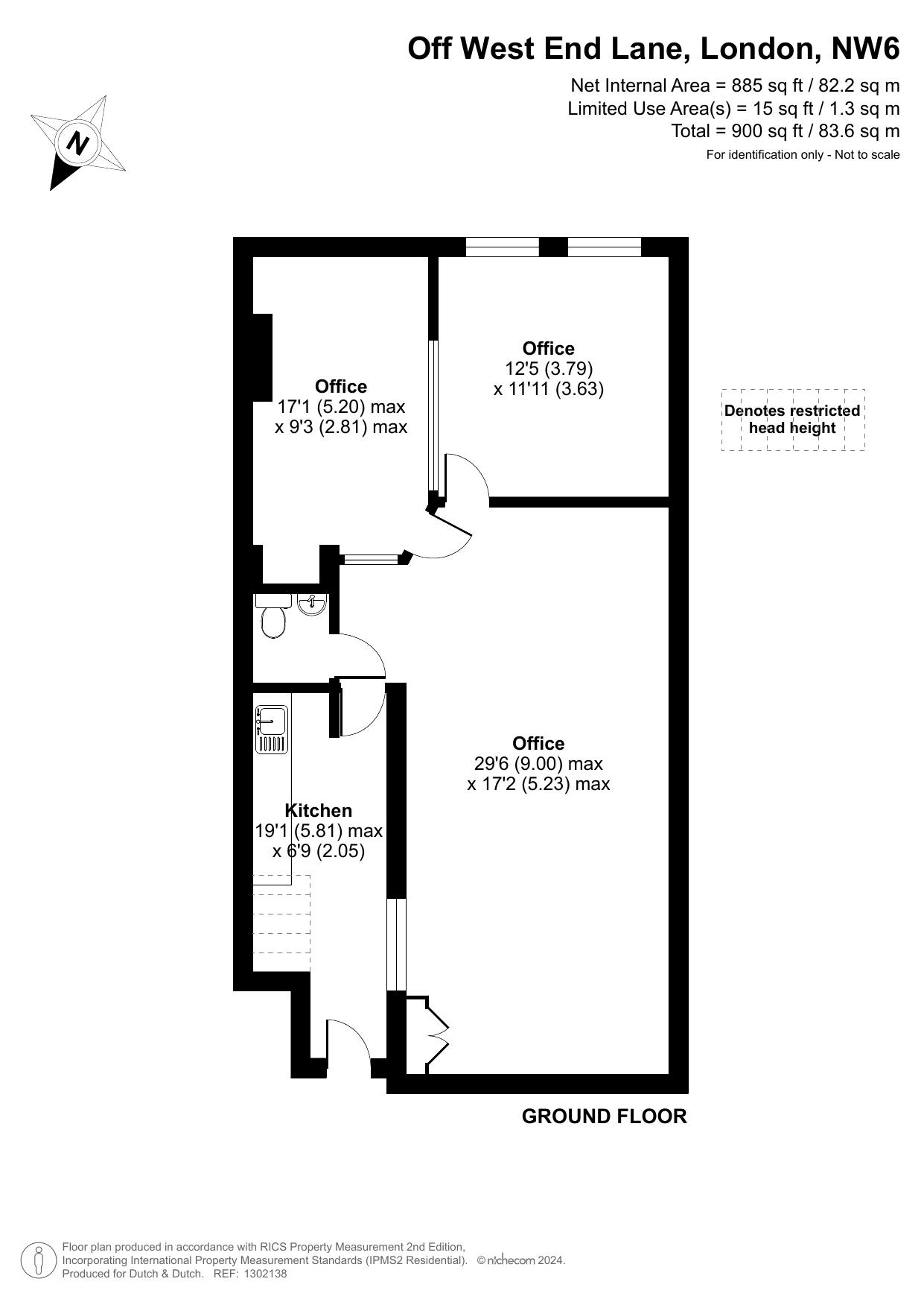
900 sq.ft
FREEHOLD MEWS OFFICE BUIDING FOR SALE WITH RESIDENTIAL UPPER PARTS SOLD OFF
  • Air-Conditioning
  • Laminate Wood Strip Flooring
  • Electric Front Security Shutter
  • Good Decorative Order
  • 3 Forecourt Parking (£800 per Space for obtaining a Parking Permit from Camden Council)
  • Kitchen and WC/Washroom
Description
The mid-terraced property is situated in an attractive cobbled mews location at the southern end of West End Lane located on the eastern side of the thoroughfare close to Broadhurst Gardens and to West Hampstead (Jubilee Line) Underground Station with good access to Central London.
Property Information
  • Address:
    12 West Hampstead Mews, London, NW6 3BB
  • Est. Rates Payable:
    £7984 per annum
  • Floors:
    G: 900sqft
  • Building Name:
    Office
Units & Floors
Unit
Floor
SqFt / SqM
Availability
1
Ground
900 sqft / 84 sqm
Available
Map
Loading Maps...

Stamp Duty Calculator

Similar Properties